【完成見学会】桜木町建売2~空へ広がる、スキップフロアのある平屋~【販売中】
新居浜市桜木町に完成した平屋。
過去500棟の注文住宅を手掛けた
KOYO ARCHITECTS随一の
注文住宅建築家が設計企画を担当。
勾配天井とスキップフロアが彩る開放的な平屋。
高性能な断熱と充実の収納動線ではじめる快適な暮らし。
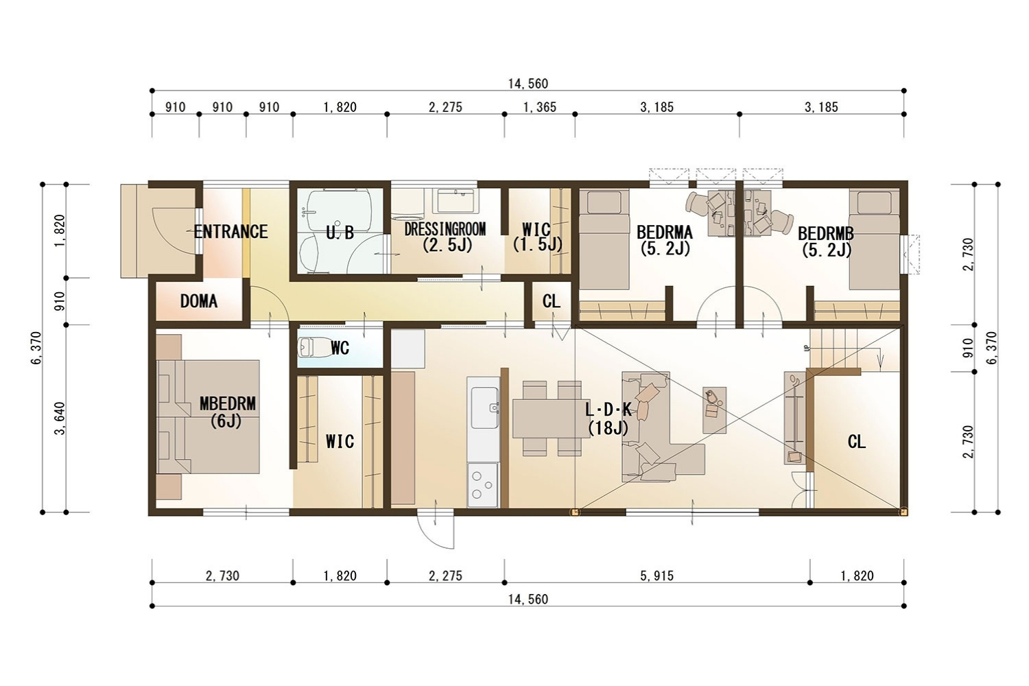
開放感あふれる明るいLDK
階空間を楽しむスキップフロア
1階には家族で使える大容量のファミリークローク
家事動線の良さだけでなく
Ua値0.43で温度差が少ない健康な住環境と性能も安心。
3LDK+S(納戸)2,890万円(税込)で販売中です。
この機会にぜひお越しいただき、
居心地の良さをご体感くださいませ。
《物件のこだわりポイント》
01 | 勾配天井が解き放つ自由、スキップフロアの遊び心
オークの床材が広がるリビングは
勾配天井とスキップフロアが立体的な変化を創出します。
南側の大開口から陽光が溢れ
夜はカフェ風の照明が空間を優しく彩る設計。
光と陰影がドラマチックに交差する
心地よい暮らしの拠点です。

02 | 落ち着きに包まれる主寝室、間接照明が誘う休息。
落ち着いたトーンで統一された
一日を締めくくるためのプライベートな領域。
間接照明の柔らかな光が
心身を解放へと導きます。
大きめのウォークインクローゼットを備え
衣類や身の回りを美しく収めることで
寝室に心地よい余白を創出しました。


03 | 洗面からクローゼットへ、無駄のない家事の近道
白を基調とした洗面浴室は
光が満ちる清潔な空間。
そのままファミリークローゼットへ直結する間取りが
身支度や洗濯の手間を劇的に変えます。
淀みのない家事の流れが
日々の暮らしに軽やかなリズムを生み出します。

04 | 穏やかな日常を保つ、計算された収納計画
土間収納からスキップフロア下の大型収納まで
随所に配置された収納が日々の暮らしをすっきりと保ちます。
生活感を抑えつつ、必要な場所に物を収めることで
常に美しく快適な居住空間を実現しました。

より詳しい情報を知りたい方はこちらもご覧ください
〇こんな方にオススメ
・高性能な住宅を実際に体感したい方
・ライフプランにあった間取りを知りたい方
・デザインにこだわりたい方
・松尾式全館空調に興味のある方
・ZEH補助金などの補助金について
詳しく知りたい方 etc…
----------------------------------------------------------
Instagramでは、施工事例の紹介やマイホームに
置きたいおすすめの家具や家電、
お洒落なインテリアなどの紹介をしています。ぜひチェックしてみてください。
Instagramはこちらからご覧いただけます。